















































































































Vuorelantie 24
Puurtila, Varkaus
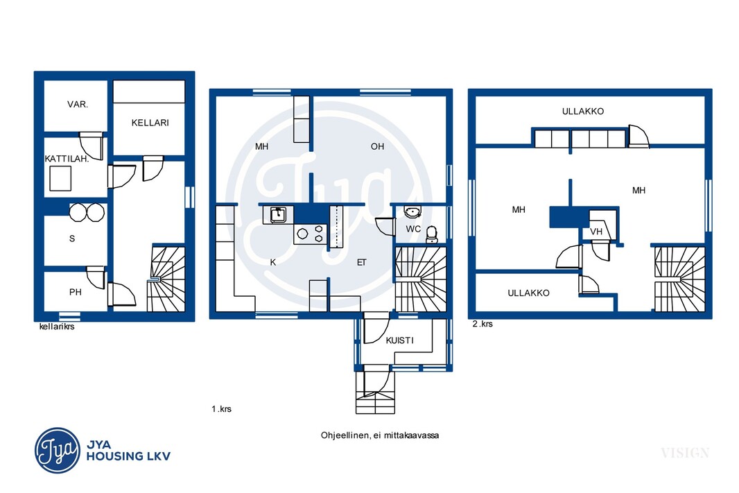
Sis.tulokuisti, et, wc,k,rt, oh // Yläki. Aula, tila, huone 1, huone 2
15 000 €

98 m²

Tyyppi:
Omakotitalo

Rakennusvuosi:
1955

Tontti:
Oma
Varkauden Puurtilassa omalla kauniilla 690 m² tilalla 1954 valmistunut omakotitalo, mihin tehty paljon uudistuksia vuosien varrella. Kohde on kunnallistekniikassa. Lisäksi viereinen tila kuuluu sopimukseen. Tästä edullinen koti "pientä" askartelua kaipaavalle. Lisätietoja 044 444 0528.

Ota yhteyttä!
Kohdenumero | 21864682 |
---|---|
Sijainti | Vuorelantie 24, 78400 Varkaus |
Huoneistoselitelmä | Sis.tulokuisti, et, wc,k,rt, oh // Yläki. Aula, tila, huone 1, huone 2 |
Huoneita | Kolmio |
Tyyppi | Omakotitalo (kiinteistö) |
Asuintilojen pinta-ala | 98 m² |
Pinta-alojen lisätiedot | - huoneistoala 98 m² - kokonaisala 100 m² - kerrosala 168 m² (kellarikerroksen kanssa) EI TARKISTUSMITATTU! |
Kerroksia | 2 |
Vapautuminen | sopimuksen mukaan |
Kohteen kunto | Tyydyttävä |
Energialuokka | Kohteelle ei lain mukaan tarvita energiatodistusta. |
Rakennusvuosi | 1955 |
Käyttöönottovuosi | 1954 |
Velaton hinta | 15 000 € |
---|---|
Myyntihinta | 15 000 € |
Velkaosuus | - |
Vuokrattu | Ei |
Muut maksut/lisätietoa maksuista | |
---|---|
Kiinteistövero | 123,24 |
Lämmityskustannukset | 250 € / kk |
---|---|
Muut maksut | - kiinteistövero 915-413-1-210 on 45,15 € (2024) |
Lämmitys | Tyydyttävä |
---|---|
Lämmitysmuodot |
|
Oma sauna | Kyllä |
Sähköliittymä siirtyy | Kyllä |
Antennijärjestelmä | Antenni |
Tehdyt remontit | - 1964 Huopakatto poistettu - 1973 Oluhuone remontti - 1973 Saunaan lauteet uusittu - 1978 Saunaan lattialämmitys - 1978 Yläkerran remontti - 1981 Olohuoneen ja ruokaluhuoneen sisustus - 1983 Vesijohtoja ja viemäreitä uusittu - 1983 Keittiöön parkettilattia - 1986 Kuistia remontoitu (ikkunat, seinäpaneelit, lattia, ulko-ovi) - 1989 Uusi öljypoltin - 1990 Saunaan seinäpanelit höylätty, lauteet uusittu ja uusi sähkökiuas sekä lattia uusittu - 1991 Sadevesirännit uusittu - 1993 Vesipummpu uusittu - 1994 Ulkomaalaus - 1994 Polttoainesäiliön tarkastus ja puhdistus -1997 kunnallistekniikalta vesi-ja viemäriliittymä, uuisutty kellariin vesi- ja viemärioputket sekä uudet lattiakaivo, purettu saos- ja imeytyskaivot - 1998 Ullakkotila lämpöeristetty - 2000 Kiukaan vastukset ja kivet uusittuja - 2001 uudet salaojaputket - 2005 ulkoportaat korjattu ja saunaan lauteet uusittu - 2010 Polttoainesäiliön puhdistettu ja tarkastettu - 2014 Saunaan kiukaansäädin ja uudet kivet -2015 Kaivosta tulevan vesipumpun korjaus (ulkokäyttöön) - 2016 WC-istuin uusittu - 2019 Sadevesikourut uusittu - Markiisit uusittu 2021 |
Palvelut | |
---|---|
Päiväkoti | - Pilke Nappula n. 2,7 km, Päiviösaaren päiväkoti n. 5,2 km |
Koulu | - Waltterin koulu n. 7,7 km |
Palvelut | - Kommilan S-market n. 2,7 km - Aalto Hyvinvointikeskus n. 2,7 km - Varkauden kaupungin kirjasto n. 6,5 km |
Liikenneyhteydet | |
---|---|
Liikenneyhteydet | - Varkauden matkakeskus n. 7,3 km - linja-autopysäkki n. 290 m |
Tie perille | Kyllä |
Viemäri |
|
---|---|
Vesihuolto |
|
Katto | |
---|---|
Kate | Pelti |
Katon kunto | Hyvä |
Rakennusmateriaalit | |
---|---|
Käytetyt rakennusmateriaalit |
|
Keittiö | |
---|---|
Keittiön varustelu | Pintamateriaalit&varusteet: Lattia: Parketti// Seinät: Levy // Katto: Lomalauta Varusteet: - kaapistot - työtasot - sähköhella (4-lev.)/uuni - liesituuletin - tiskitaso (2:lla altaalla) - jääkaappi - siivouskaappi |
Kylpyhuone | |
---|---|
Kylpyhuoneen kuvaus | Pintamateriaalit&varusteet: Lattia: Klinkkeri // Seinät: Kaakeli // Katto: Levy Varusteet: - yläikkuna - suihku - pyykinpesykoneliitäntä - lattialämmitys |
Sauna | |
---|---|
Saunan kuvaus | Pintamateriaalit&varusteet: Lattia: Klinkkeri // Seinät: Hirsipaneeli // Katto: Paneeli Varusteet: - sähkökiuas - yläikkuna - lauteet - lattiakaivo |
Makuuhuone | |
---|---|
Makuuhuoneen kuvaus | YLÄKERTA Aula Lattia: Kokolattiamatto // Seinät: Kangastapetti // Katto: Halltex Makuuhuone 1. Lattia: Puu // Seinät: Pinkopahvi // Katto: Pinkopahvi Varusteet: - vaatekomerot 2 kpl - lavuaari + allaskaapit - hyllykkö Makuuhuone 2. Lattia: Puu // Seinät: Pinkopahvi/kangastapetti // Katto: Pinkopahvi Varusteet: - vaatekomero - ovi ullakkotilaan (eristetrty) - pistorasian kautta valot ullakkotilaan ylös |
1 |
WC-tilat | |
---|---|
WC-tilojen kuvaus | Pintamateriaalit&varusteet: Lattia: Klinkkeri // Seinät: Pystypaneeli // Katto: Halltex Varusteet: - lavuaari - peilikaappi + sivukaapit - työtaso + allaskaappi - wc-istuin - ikkuna - ikkuna - bideesuihku |
Lisätietoja rakennusoikeudesta | Alueella on Puurtila-Luttila osayleiskaava, jossa kaavamerkintä AP-1. Tilalla 915-413-1-154 (690 m2) rakennusoikeus on siten vain 69 m2 ja se on kokonaan käytetty. Tilan pinta-ala jää alle rakentamislain säännöksen vähimmäisvaatimuksen, joka on 1000 m2. Mahdolliset kerrosalaa lisäävät tai muut merkittävät rakentamiset on käsiteltävä poikkeamisluvalla tästä syystä, ellei tilan pinta-alaa kasvateta lain edellyttämään minimiin. Tilalla 915-414-1-210 ei ole rakennuspaikkaa, sitä ei pelkkä talousrakennus näissä olosuhteissa muodosta. Näin ollen sen rakennusoikeus tulee ratkaistavaksi mahdollisessa poikkeamislupamenettelyssä. |
---|---|
Tontin nimi | Kalliorinne ja Kantala |
Koko | 690 m² |
Omistus | Oma |
Kaavoitustilanne |
|
Kiinteistötunnus | 915-413-1-154 ja 915-413-1-210 |
Rakennukset |
|
Ranta |
|

Nimi | Vekkeli Ari |
---|---|
Sähköposti | ari.vekkeli@jya.fi |
Puhelin | 044 444 0528 |
Yrityksen nimi | JYA Housing LKV, Varkaus |
Toimiston nimi | JYA Housing LKV, Varkaus |
Yrityksen nimi | JYA Housing LKV, Varkaus |
---|---|
Toimiston nimi | JYA Housing LKV, Varkaus |
Osoite | Kauppakatu 34, Varkaus |
Toimiston puhelin | 044 444 0258 |
Toimiston sähköposti | varkaus@jya.fi |