luonnos keskikerros pohjakuva
luonnos yläkerta pohjakuva
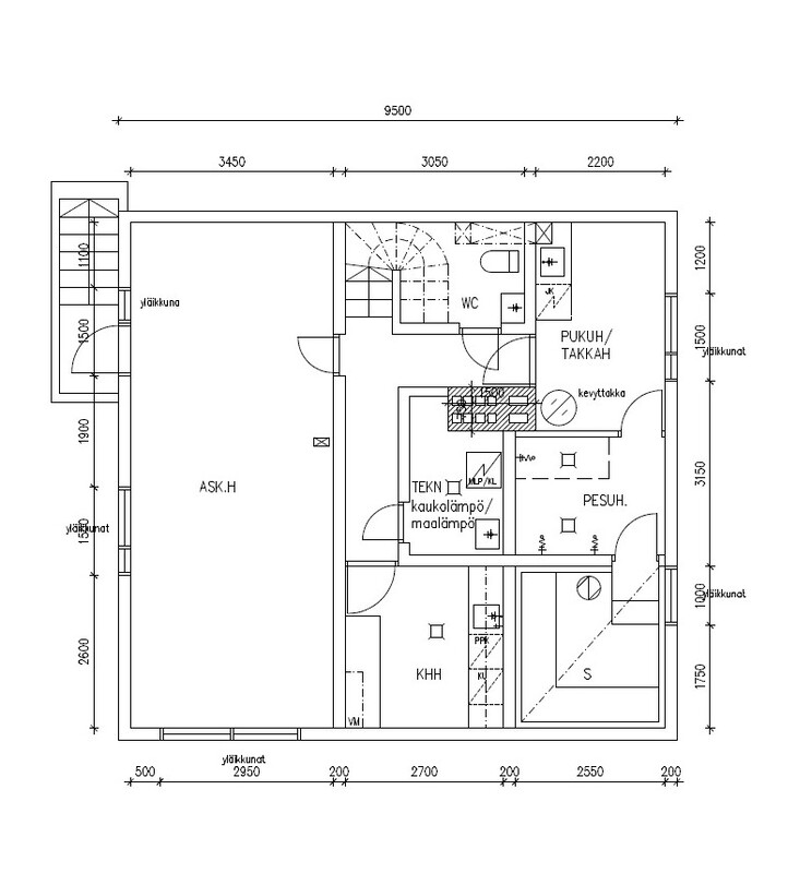
luonnos kellarikerros pohjakuva
keskikerros
yläkerta
yläkerta
yläkerta
kellari
autalli
luonnos keskikerros pohjakuva
luonnos yläkerta pohjakuva
luonnos kellarikerros pohjakuva
keskikerros
yläkerta
yläkerta
yläkerta
kellari
autalli Metsänvartijantie 6
Espoo, Espoo
5h, oh,k,s,kellaritilat189 000 €
130 m²
Tyyppi:
Omakotitalotontti
Hoitovastike:
220 € / kk
Rakennusvuosi:
1960
Tontti:
Oma
Tässä on hyvä mahdollisuus hankkia erillistalo, joka sijaitsee pienessä asunto-osakeyhtiössä Espoon Laaksolahdessa. Varainsiirtovero on vain 1,5%! Yhtiöjärjestyksessä on vastuulauseke, joten jokainen asukas vastaa omasta huoneistostaan aiheutuvista korjaus- ja saneerauskuluista.
Talon suunnitelmat ovat arkkitehdin laatimia, ja ne tarjoavat erinomaisen mahdollisuuden muokata tilat mieleisekseen. Suunnitelmissa on tilava olohuone, moderni keittiö, avara aula, viisi makuuhuonetta, kolme kylpyhuonetta, iso oleskeluhuone kellarikerroksessa, sauna ja kodinhoitohuone. Talossa on jo tehty merkittäviä purkutöitä ja yläkerran eristys on suurelta osin tehty. Lisäksi talossa on kaksi parveketta, lämmin autotalli ja tilava suojainen piha-alue, joka sopii erinomaisesti pihalla pelaamiseen ja oleskeluun.
Kunnostustyöt vaativat ammattilaisia, mutta myyjä on valmis auttamaan ostajaa löytämään luotettavat tekijät remontin toteuttamiseen. Tämä on loistava tilaisuus luoda unelmiesi koti järkevään hintaan arvostettuun Laaksolahteen.
Lisätiedot Mika Hautala puh. 050 2311 tai mika.hautala@jya.fi.
Ota yhteyttä!
| Kohdenumero | 21168902 |
|---|---|
| Sijainti | Metsänvartijantie 6, 02720 Espoo |
| Omistusmuoto | Oma |
| Huoneistoselitelmä | 5h, oh,k,s,kellaritilat |
| Huoneita | 6 h ja enemmän |
| Hallintamuoto | Asunto-osakeyhtiö |
| Tyyppi | Omakotitalotontti (osake) |
| Asuintilojen pinta-ala | 130 m² |
| Pinta-alojen lisätiedot | Pinta-alatieto perustuu yhtiöjärjestykseen eikä pinta-alaa ole tarkistusmitattu. Pinta-alaan ei ole laskettu kellarikerrosta. Muu ala on yhtiöjärjestyksessä ilmoitettu autotalli. |
| Kerros | 1/3 |
| Vapautuminen | sopimuksen mukaan |
| Kohteen kunto | Ei luokiteltu |
| Energialuokka | Ei lain edellyttämää energiatodistusta |
| Rakennusvuosi | 1960 |
| Käyttöönottovuosi | 1960 |
| Velaton hinta | 189 000 € |
|---|---|
| Myyntihinta | 189 000 € |
| Velkaosuus | 0 € |
| Vuokrattu | Ei |
| Vastikkeet | |
|---|---|
| Huoneiston yhtiövastike yht | 220 € / kk |
| Hoitovastike | 220 € / kk |
| Lämmitys | Sähkö, öljy |
|---|---|
| Lämmitysmuodot |
|
| Oma sauna | Kyllä |
| Parveke | Kyllä |
| Tulisija |
|
|---|
| Katto | |
|---|---|
| Kate | Harjakatto, peltikate |
| Rakennusmateriaalit | |
|---|---|
| Käytetyt rakennusmateriaalit |
|
| Muut rakennusmateriaalit | Puu |
| Sauna | |
|---|---|
| Kiuas |
|
| Parveke | |
|---|---|
| Parveke |
|
| Koko | 2 610 m² |
|---|---|
| Omistus | Oma |
| Kaavoitustilanne |
|
| Kaavoitustiedot | Espoon kaupunki |
| Nimi | Asunto Oy Espoon Metsänvartijantie 6 |
|---|---|
| Isännöitsijän tiedot | Onni Isännöinti Oy, Äyritie 16, 01510 Vantaa. asiakaspalvelu@onniisannointi.fi |
| Tehdyt remontit | 2018 B ja C talojen hulevesiliittymä kaupungin hulevesijärjestelmään. 2017/10 A-asunnon sadevesijärjestelmän kaivuutyöt ja ohjaus kaupungin hulevesijärjestelmään. 2013-2014 paritalojen vesikatto, ulkoverhous, ikkuna ja ulko-ovisaneeraus, A-talon ulkomaalaus. 1990 talojen ulkomaalaus. |
| Tulevat remontit | A Talo myydään täysin saneerattavana. Talo on sisältä purettu ja yläkerta on osittain rakennettu. |
| Huoneistojen lukumäärä | 5 |
| Taloyhtiössä |
|
| Esittelyaika | 28.09. 16:00 - 16:30 |
|---|---|
| Esittelijä | Hautala Tiina |
| p. | 0444440444 |
| Sähköposti | tiina.hautala@jya.fi |
| yleisesittely |
| Nimi | Hautala Mika |
|---|---|
| Sähköposti | mika.hautala@jya.fi |
| Puhelin | 050 2311 |
| Yrityksen nimi | JYA Housing LKV, Pääkaupunkiseutu |
| Toimiston nimi | JYA Housing LKV, Pääkaupunkiseutu |
| Yrityksen nimi | JYA Housing LKV, Pääkaupunkiseutu |
|---|---|
| Toimiston nimi | JYA Housing LKV, Pääkaupunkiseutu |
| Osoite | Siltavoudintie 4 LH 8, Helsinki |
| Toimiston puhelin | 0800 155 155 |
| Toimiston sähköposti | info@jya.fi |