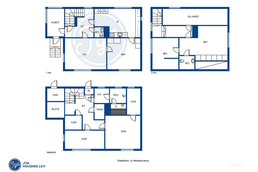
Kuisti
Kuisti
Kuisti
Eteinen
Alakerran wc
Yläkerta
Yläkerta
Yläkerran wc
Kellari
Vanha kattila puulämmitykselle
Vesi-ilmalämpöpumppu
Kuisti
Kuisti
Kuisti
Eteinen
Alakerran wc
Yläkerta
Yläkerta
Yläkerran wc
Kellari
Vanha kattila puulämmitykselle
Vesi-ilmalämpöpumppu
Rautalammintie 36
4. kaupunginosa, Suonenjoki
4 h, k, psh, s, 2xwc118 000 €
103 m²
Tyyppi:
Omakotitalo
Rakennusvuosi:
1957
Tontti:
Oma
Tyylillä ja hyvällä maulla kauniiksi kunnostettu omakotitalo aivan keskustan tuntumassa. Isot ja toimivat tilat kolmessa kerroksessa. Yläkerrassa kaksi makuuhuonetta ja toinen wc, sekä paljon varastotilaa. Pohjakerroksessa saunatilat, paljon varastotilaa ja tekniset tilat. Tyylikkäästi remontoidut huonetilat ja keittiö tuovat viihtyisyyttä asumiseen.
Tontilla on tilaa reilusti touhuta ja harrastaa, kaikkiaan 1603 m2. Pihalla on myös oma kaivo kasteluvedelle. Tämä koti lämpenee nykyaikaisesti vasta laitetulla ilma-vesilämpöpumpulla tai vaihtoehtoisesti puilla, myös ilmalämpöpumppu löytyy talosta.
Ota yhteyttä!
| Kohdenumero | 20736656 |
|---|---|
| Sijainti | Rautalammintie 36, 77600 Suonenjoki |
| Huoneistoselitelmä | 4 h, k, psh, s, 2xwc |
| Huoneita | Ei luokiteltu |
| Tyyppi | Omakotitalo (kiinteistö) |
| Asuintilojen pinta-ala | 103 m² |
| Kerroksia | 3 |
| Vapautuminen | sopimuksen mukaan |
| Kohteen kunto | Tyydyttävä |
| Energialuokka | F2013. |
| Rakennusvuosi | 1957 |
| Käyttöönottovuosi | 1957 |
| Velaton hinta | 118 000 € |
|---|---|
| Myyntihinta | 118 000 € |
| Velkaosuus | - |
| Vuokrattu | Ei |
| Muut maksut/lisätietoa maksuista | |
|---|---|
| Kiinteistövero | 232,66 |
| Pihan kuvaus | Pihalla oma kaivo kasteluvedelle. |
|---|---|
| Lämmitys | Uusittu |
| Lämmitysmuodot |
|
| Oma sauna | Kyllä |
| Sähköliittymä siirtyy | Kyllä |
| Antennijärjestelmä | Antenni |
| Kuntotarkistus tehty | Kyllä |
| Tehdyt remontit | 2024 Talon ulkomaalaus 2022 Ilmavesilämpöpumppu asennettu 2021 lumiesteet asennettu 2021 Kylmä eteinen uusittu 2017-2019 lattiat uusittu, sisäkatot uusittu, laaja pintaremontti. Keittiöremontti, ilmalämpöpumppu, alakerran wc remontoitu.Terassin rakennus, aitojen rakennus. Alakerran sähköt uusittu. Yläkerran wc remontoitu putkitöineen ja sähköineen. 2002 Kylpyhuone ja saunaremontti (vesieristeet on). 2001 Ikkuna- ja oviremontti. 1977 Peruskorjaus; ulkoseinien eristys, vesikeskuslämmitys, vesikatto, keittiö, seinät, lattiat, kattilahuone, sähköt, yläkertaan 2 huonetta tehty sekä vaatehuone. |
| Palvelut | |
|---|---|
| Koulu | Noin 700 m |
| Palvelut | Noin 500 metriä |
| Liikenneyhteydet | |
|---|---|
| Tie perille | Kyllä |
| Viemäri |
|
|---|---|
| Vesihuolto |
|
| Katto | |
|---|---|
| Kate | Pelti |
| Rakennusmateriaalit | |
|---|---|
| Käytetyt rakennusmateriaalit |
|
| Keittiö | |
|---|---|
| Keittiön pöydät |
|
| Keittiön muu varustelu |
|
| Liesi |
|
| Jääkaappi ja pakastin |
|
| Keittiön lattia |
|
| Keittiön seinät |
|
| Kylpyhuone | |
|---|---|
| Kylpyhuoneen varustelu |
|
| Kylpyhuoneen lattia |
|
| Kylpyhuoneen seinät |
|
| Sauna | |
|---|---|
| Kiuas |
|
| Saunan lattia |
|
| Saunan seinät |
|
| Makuuhuone | |
|---|---|
| 3 | |
| Makuuhuoneen lattia |
|
| Makuuhuoneen seinät |
|
| Olohuone | |
|---|---|
| Olohuoneen lattia |
|
| Olohuoneen seinät |
|
| WC-tilat | |
|---|---|
| WC-tilojen kuvaus | Molemmat wc laattalattialla Yläkerran wc:n seinät paneelia, alakerran maalattu laatta |
| WC-tilojen varustelu |
|
| WC-tilojen lattia |
|
| Lisätietoja rakennusoikeudesta | Suonenjoen kaupunki |
|---|---|
| Koko | 1 603 m² |
| Omistus | Oma |
| Kaavoitustilanne |
|
| Kiinteistötunnus | 778-4-401-20 |
| Nimi | Kattainen Olli |
|---|---|
| Sähköposti | olli.kattainen@jya.fi |
| Puhelin | 044 444 0521 |
| Yrityksen nimi | JYA Housing LKV, Varkaus |
| Toimiston nimi | JYA Housing LKV, Varkaus |
| Yrityksen nimi | JYA Housing LKV, Varkaus |
|---|---|
| Toimiston nimi | JYA Housing LKV, Varkaus |
| Osoite | Kauppakatu 34, Varkaus |
| Toimiston puhelin | 044 444 0258 |
| Toimiston sähköposti | varkaus@jya.fi |